The equipment operates on the following principles:
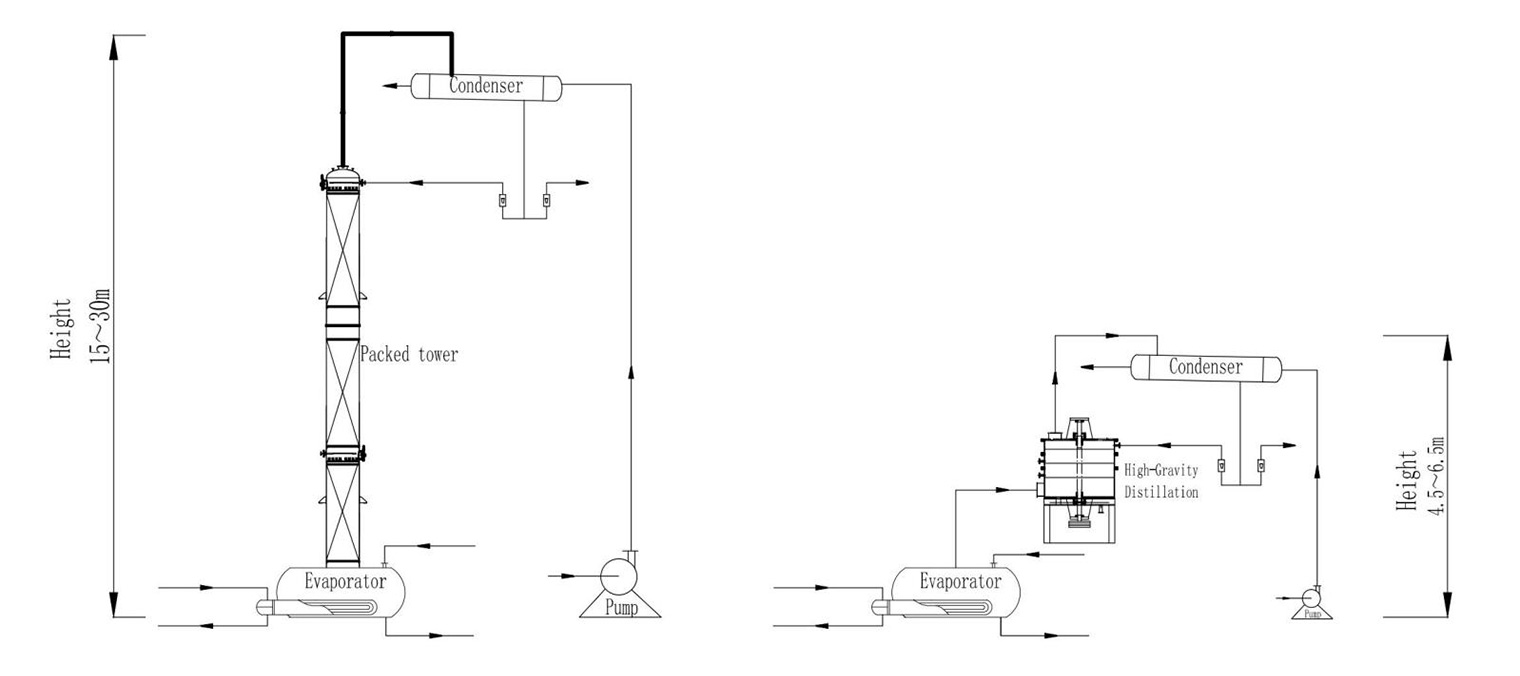
(1) Utilizing centrifugal force to disperse the liquid before it contacts the gas, ensuring more thorough interaction than direct liquid-gas contact. This significantly increases the gas-liquid interfacial contact area and enhances mass/heat transfer rates and efficiency, thereby drastically reducing the equipment size.
(2) A rotor with a specially designed structure rotates at high speed within the housing. The gas phase enters the equipment through the gas inlet, flows from the rotor’s outer edge into its interior, while the liquid phase enters the rotor’s center via the liquid inlet. Inside the rotor, the two phases form an extremely high-specific-surface-area gas-liquid interface that continuously renews itself, achieving high-efficiency mass and heat transfer. Ultimately, the gas phase exits the housing through the gas outlet and is condensed in a condenser, while the liquid phase is collected within the housing and discharged through the liquid outlet.
 |
← Gas phase |
→ Liquid phase |
| By replacing the gravitational field with a centrifugal force field, the gas-liquid contact and transfer processes are intensified, thus significantly reducing equipment volume. |
Height Comparison: Packed Column vs. High-Gravity Distillation Machine

Real object comparison:

Application Areas:
This technology is applied to organic solvent recovery and product separation/purification, including but not limited to: ethanol, methanol, acetone, ethyl acetate, acetonitrile, tetrahydrofuran, dichloromethane, NMP, DMF, DMSO, toluene, isopropanol, and tert-butanol. It also covers stripping and air sparging processes. Industrialized applications span multiple sectors:
1. Purification of botanical drug monomers
2. Pharmaceutical intermediate manufacturing
3. Fine chemical production
4. Petrochemical industry
5. Biochemical industry
6. Environmental protection sector (biomass energy production, waste gas/liquid treatment)
Specifications and Models of Distillation Machines
| Model |
Overall dimensions (mm)length x width x height |
Mother Liquor Processing Capacity |
|
|
Product purity |
| Methanol(50%+water) |
Ethanol(50%+water) |
Acetone(50%+water) |
| 450 |
1240x620x1840 |
300kg/h |
150kg/h |
300kg/h |
Methanol:99%-99.6% Ethanol:95%(v/v) Acetone:98%~98.5% |
| 650 |
1500x1000x2020 |
550kg/h |
350kg/h |
700kg/h |
| 850 |
1650x1200x2020 |
900kg/h |
550kg/h |
1000kg/h |
| 1100 |
1850x1350x2020 |
1200kg/h |
800kg/h |
1400kg/h |
| 1300 |
2050x1600x2020 |
2200kg/h |
1500kg/h |
2600kg/h |
| 1700 |
2550×1890×2520 |
1.5m3-3.5m3 |
Notes: 1. The composition and concentration of the feed will affect the processing capacity shown in the above table.
2. Apart from the multi-component mixed solvents (methanol, ethanol, and acetone) mentioned in the table above, this unit is also capable of separating them.
Common Separation Indicators for Several Materials
| Operating Pressure |
Original Material |
Finished Product Concentration |
| Ordinary Pressure |
Ethanol/water |
Ethanol>95%v/v |
| Acetone/water |
Acetone≥98.5% |
| Ethyl acetate/water |
Ethyl acetate>99% |
| Acetonitrile/water |
Acetonitrile>85% |
| Tetrahydrofuran/water |
Tetrahydrofuran>94% |
| Dichloromethane/water |
Dichloromethane>99.5% |
| Negative Pressure |
DMF/water |
DMF>99.5% |
| DMAC/water |
DMAC>99.5% |
| DMSO/water |
DMSO>99.5% |
| NMP/water |
NMP>99.5% |
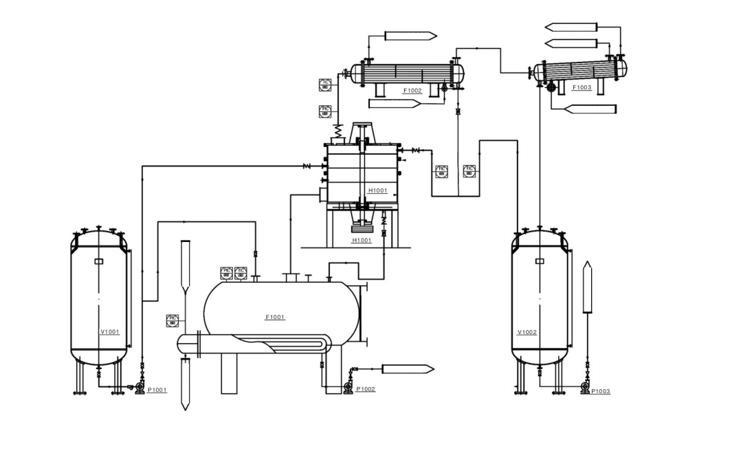
Process Flow Chart

Comparison with traditional distillation column
| Comparison between High-Efficient Rotary Distillation Machine and Traditional Distillation column under the Same Separation Efficiency |
| Name |
High-efficient Rotary Distillation Machine |
Traditional packing column |
| Height |
4.5-6.5m |
15-30m |
| Covered area |
15m2 |
50m2 |
| Vial Eq.Time |
20min |
120min |
| Maintenance costs |
Low |
High |
| Fillers |
None |
With |
| Energy consumption |
Energy saving 20%-30% |
High energy consumption |
| Maintenance time |
-2h |
≥1day |
| Operating pressure |
Both negative pressure and normal pressure are acceptable |
Both negative pressure and normal pressure are acceptable |
| Factory conditions |
Regular 25mm ground foundation |
Professional factory buildings are required |
| Civil conditions |
Especially applicable Professional factory buildings are not required |
Specially designed civil engineering standards |
| Thermosensitive materials |
Solvent recovery can be directly achieved in lot of transportation costs.the workshop,which shall save a |
Not applicable |
| Recycling form |
Centralized recycling |
Case Description:
 |
 |
| Model CX-1100 |
Model CX-1300 |
Main Equipment: Feed tank, evaporator, high-gravity distillation machine, condenser, power distribution cabinet. Accessories: Piping, pneumatic valves, flanges, flow meters, thermometers, pressure gauges, etc. Control System: PLC Footprint (L×W×H): 6000×2700×6500 mm |
Main Equipment: Feed tank, evaporator, high-gravity distillation machine, condenser, power distribution cabinet, vacuum system Accessories: Piping, pneumatic valves, flanges, flow meters, thermometers, pressure gauges, etc. Control System: PLC Footprint (L×W×H): 5200*2500*6500mm |
| Feed Concentration |
Ethanol 60%, water |
Feed Concentration |
N,N-Dimethylformamide(DMF)15%,water;
|
| Feed Flow Rate |
500 L/h |
Feed Flow Rate |
500 L/h |
| Ethanol Purity (Top Product) |
95% vol |
Distillate Purity |
DMF ≤0.5% in water |
| Residual Ethanol in Bottoms |
0.5% wt |
System Operating Pressure |
Negative pressure operation; Column top: -91~92 kPa (gauge); Total pressure drop: 5 kPa
|
| Distillation Mode |
Continuous/Batch |
Distillation Mode |
Continuous/Batch distillation |
|
Distillation Machine Motor Power
|
Rated: 37 kW Operating: ~20 kW
|
Distillation Machine Motor Power |
Rated: 37 kW Operating: ~20 kW
|
| Steam Consumption |
~0.45 T/h (at 0.3 MPa, inlet temp. ≈135°C) |
Steam Consumption |
~0.75 T/h (at 0.3 MPa, temperature ≈135°C)
|
| Cooling Water (Primary Condenser) |
~50 T/h (30°C, ΔT=5°C) |
Cooling Water (Primary Condenser) |
~80 T/h (ΔT=5°C) |
| Brine Solution (Secondary Condenser) |
6–8 T/h (recommended) |
Brine Solution (Secondary Condenser) |
~10 T/h (recommended) |